21.12.24(금) 09:00 ~ 18:00
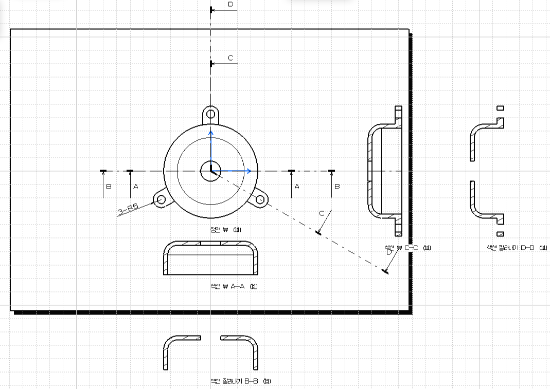
도면작업
1. A-A 오프셋 섹션 뷰
2. B-B 오프셋 섹션 잘라내기
3. C-C 배열된 섹션 뷰
4. D-D 배열된 섹션 잘라내기
5. 상세도
6. 클리핑 뷰

치수기입
1. 치수텍스트 추가방법
도구 – 옵션 – 기계 디자인 – 도면 – 조작기 – 앞,뒤 텍스트 삽입

2. 치수 작성방법
직렬치수법 – 직렬로 나란히 연결된 개개의 치수에 주어진 일반공차가 차례로 누적되어도 기능과 상관없는 경우 사용한다. 중요도가 작인 치수는 괄호를 붙여서 참고치수로 기입한다.
병렬치수법 – 기준면을 설정하여 개개별로 기입되는 방법.
각 치수의 일반공차는 다른 치수의 일반공차에 영향을 주지 않는다.
누진치수법 – 한 개의 연속된 치수선으로 가년하게 사용하는 방법
치수의 기준점에 기점기호를 기입하고. 치수보조선과 만나는 곳마다 화살표를 붙인다.

스케치 연습예제
